Toggle navigation
(+356) 2164 9500
(+356) 9998 6779
info@sensaramalta.com
Head Office - Sensara Malta
Triq Santa Marija, Safi
09.00 to 19.00 hrs
Monday to Saturday
Home
Properties
Sales
Rentals
Foreign
About us
Services
Contacts
Send your request
Previous
Next
271,500 €
CLICK HERE for DETAILED PHOTOS
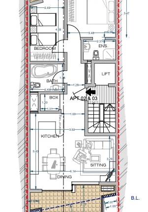
Zejtun - 2 Bedroom Finished Apartment
2 bedroom apartment for sale • Zejtun
A two-bedroom apartment currently being built is available for sale in a quiet residential area of Żejtun, offered finished excluding bathrooms and doors.
Featuring an open-plan kitchen/living/dining, a master bedroom with an ensuite bathroom, a second bedroom, a main bathroom, and a front balcony.
This apartment is currently being built and is estimated to be ready by the end of this year
Rooms and Features
Code
V022206
Locality
Zejtun
Property type
2 bedroom apartment
Price
271,500 €
Locals
1
Bedrooms
2
Bathrooms
2
Sqm
90
Balconies
1
Floor
2
Energetic class
Nondescript
Photos • Floorplans • Video
Photos
Options
Print Property sheet
Send property sheet by mail
Schedule a visit
RealEstate Brokers
Attard Charlene
+356 9996 8105
+356 9998 6779
+356 2164 9500
charlene@sensaramalta.com
Information request
Name *
Phone *
E-mail *
Request Details *
I authorize the processing of my personal data according Regolamento UE n. 679/2016 -
Privacy Policy
I authorize the processing of data for marketing purposes, promotional activities, commercial offers and market surveys.
Send
Share on
We also recommend
for Sale
Qormi - 2 Bedroom Apartment On Plan
210,000 €
for Sale
Iklin -Under Construction 2 Bedroom Fully Finished Apartment 3rd Floor + Terrace + Optional Garage
330,000 €
for Sale
Bugibba - 2 Bedroom Finished Apartment
400,000 €
Keep default settings X
Use of cookies
This site uses cookies. Our (own) cookies and those of our Partners (third party cookies) are used to offer you a unique experience with us. For this reason, together with our partners, we collect and process non-sensitive information (such as the identifier of your device or the pages you visit).
At any time you can delete, modify or verify the information you share in
Cookie preference
or in our
Cookie Policy
and
Privacy Policy
.
Necessary
Functional
Profiling
Analytics
Accept all
Decline all
Accept selected
Cookie preference