Toggle navigation
(+356) 2164 9500
(+356) 9998 6779
info@sensaramalta.com
Head Office - Sensara Malta
Triq Santa Marija, Safi
09.00 to 19.00 hrs
Monday to Saturday
Home
Properties
Sales
Rentals
Foreign
About us
Services
Contacts
Send your request
Previous
Next
379,000 €
CLICK HERE for DETAILED PHOTOS
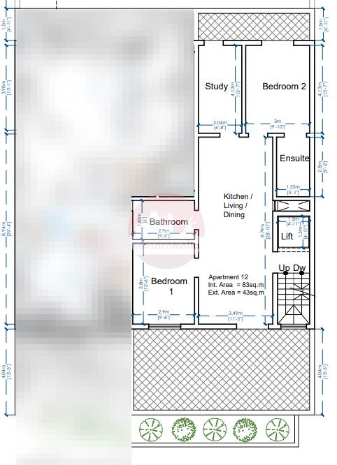
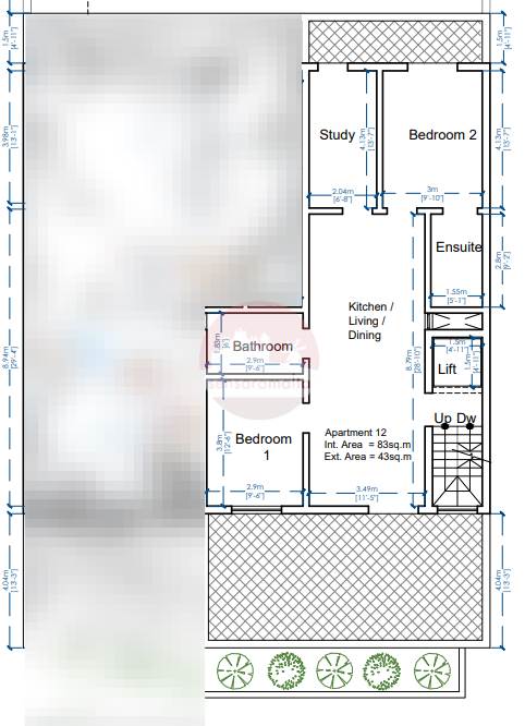
San Pawl il-Bahar - 2 Bedroom + Study Finished Penthouse + Airspace
Penthouse for sale • San Pawl il-Bahar
Located in St'Paul’s Bay, this currently on plan this penthouse offers an open-plan kitchen/dining/ living area with a spacious front terrace, ideal for those searching for outdoor area.
Features two double bedrooms, including a master with an ensuite, as well as another spare room that can be used as a study or guest bedroom. All rooms enjoy access to their own balcony.
This property is being offered finished excluding bathrooms and doors and is estimated to be finished by end of 2025.
Rooms and Features
Code
V022118
Locality
San Pawl il-Bahar
Property type
Penthouse
Price
379,000 €
Locals
1
Sqm
121
Energetic class
Nondescript
Property Conditions
New
Furniture
Not Furnished
Kitchen
Open Kitchen
Accessories:
Elevator, Double Glazing
Photos • Floorplans • Video
Photos
Options
Print Property sheet
Send property sheet by mail
Schedule a visit
RealEstate Brokers
Caruana Dylan
+356 9960 6829
+356 9998 6779
+356 2164 9500
dylan@sensaramalta.com
Information request
Name *
Phone *
E-mail *
Request Details *
I authorize the processing of my personal data according Regolamento UE n. 679/2016 -
Privacy Policy
I authorize the processing of data for marketing purposes, promotional activities, commercial offers and market surveys.
Send
Share on
We also recommend
for Sale
Mgarr - 140 sqm Finished 2 Bedroom Penthouse + Optional Garage
517,000 €
for Sale
Tarxien - 3 Bedroom Penthouse
512,000 €
for Sale
Zabbar- 3 bedroom corner Penthouse Fully finished + Airspace
429,000 €
Keep default settings X
Use of cookies
This site uses cookies. Our (own) cookies and those of our Partners (third party cookies) are used to offer you a unique experience with us. For this reason, together with our partners, we collect and process non-sensitive information (such as the identifier of your device or the pages you visit).
At any time you can delete, modify or verify the information you share in
Cookie preference
or in our
Cookie Policy
and
Privacy Policy
.
Necessary
Functional
Profiling
Analytics
Accept all
Decline all
Accept selected
Cookie preference