Toggle navigation
(+356) 2164 9500
(+356) 9998 6779
info@sensaramalta.com
Head Office - Sensara Malta
Triq Santa Marija, Safi
09.00 to 19.00 hrs
Monday to Saturday
Home
Properties
Sales
Rentals
Foreign
About us
Services
Contacts
Send your request
Previous
Next
280,000 €
CLICK HERE for DETAILED PHOTOS
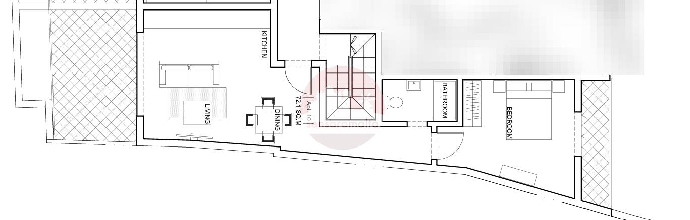
Xghajra - 1 Bedroom Finished Penthouse On Plan
Penthouse for sale • Xghajra
A modern one-bedroom penthouse in Xgħajra is now available on plan, with completion expected by 2026.
This property features a spacious bedroom, an open-plan kitchen, living, and dining area, a large front terrace ideal for outdoor entertaining, a second back terrace for added outdoor space and natural light and full roof and airspace.
It is being sold finished, excluding bathrooms and doors, giving buyers the opportunity to personalize the final touches.
Situated in a quiet residential area close to the seafront and Smart City, this penthouse is an excellent choice for first-time buyers, or investors looking for a stylish home in a serene yet well-connected location.
Optional Garage
Rooms and Features
Code
V021973
Locality
Xghajra
Property type
Penthouse
Price
280,000 €
Locals
1
Bedrooms
1
Bathrooms
1
Sqm
72.1
Floor
5
Energetic class
Nondescript
Photos • Floorplans • Video
Photos
Options
Print Property sheet
Send property sheet by mail
Schedule a visit
RealEstate Brokers
Grima Marthese
+356 7929 1233
+356 9998 6779
+356 9998 6775
marthese@sensaramalta.com
Grima Vince
+356 9940 5538
+356 9998 6779
+356 2164 9500
vince@sensaramalta.com
Information request
Name *
Phone *
E-mail *
Request Details *
I authorize the processing of my personal data according Regolamento UE n. 679/2016 -
Privacy Policy
I authorize the processing of data for marketing purposes, promotional activities, commercial offers and market surveys.
Send
Share on
We also recommend
for Sale
Marsalforn - 1 Bedroom Penthouse On Plan
205,000 €
for Sale
Ghaxaq - 3 Bedroom Finished Penthouse (On Plan)
584,000 €
for Sale
Iklin -Under Construction 1 Bedroom Fully Finished Penthouse* Roof + Terrace + Optional Garage
371,000 €
Keep default settings X
Use of cookies
This site uses cookies. Our (own) cookies and those of our Partners (third party cookies) are used to offer you a unique experience with us. For this reason, together with our partners, we collect and process non-sensitive information (such as the identifier of your device or the pages you visit).
At any time you can delete, modify or verify the information you share in
Cookie preference
or in our
Cookie Policy
and
Privacy Policy
.
Necessary
Functional
Profiling
Analytics
Accept all
Decline all
Accept selected
Cookie preference