Toggle navigation
(+356) 2164 9500
(+356) 9998 6779
info@sensaramalta.com
Head Office - Sensara Malta
Triq Santa Marija, Safi
09.00 to 19.00 hrs
Monday to Saturday
Home
Properties
Sales
Rentals
Foreign
About us
Services
Contacts
Send your request
Previous
Next
292,000 €
CLICK HERE for DETAILED PHOTOS
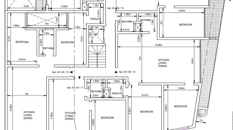
Luqa - 2 Bed,2 Bath Finished 1St Flr Apartment
2 bedroom apartment for sale • Luqa
Currently under plan, a two-bedroom apartment in Luqa is estimated to be fully completed by 2026.
Featuring an open-plan kitchen/dining/living area with a front terrace, two double bedrooms, including a master bedroom with an ensuite, and a main bathroom.
This property is being offered finished excluding bathrooms and doors.
Optional garages are available at an extra price.
Rooms and Features
Code
V021669
Locality
Luqa
Property type
2 bedroom apartment
Price
292,000 €
Locals
1
Bedrooms
2
Bathrooms
2
Sqm
87
Balconies
1
Floor
1
Energetic class
Not applicable
Property Conditions
Under Construction
Photos • Floorplans • Video
Photos
Options
Print Property sheet
Send property sheet by mail
Schedule a visit
RealEstate Brokers
Zahra Gaynor
+356 7933 5643
+356 9998 6775
+356 9998 6779
gaynor@sensaramalta.com
Information request
Name *
Phone *
E-mail *
Request Details *
I authorize the processing of my personal data according Regolamento UE n. 679/2016 -
Privacy Policy
I authorize the processing of data for marketing purposes, promotional activities, commercial offers and market surveys.
Send
Share on
We also recommend
for Sale
Kercem Gozo - 2 Bedroom Penthouse + Airspace
267,000 €
for Sale
Rabat - 2 Bedroom Finished Luxurious Apartment + Pool + Terrace + Views
975,000 €
for Sale
Qormi - 2 Bedroom Apartment On Plan
210,000 €
Keep default settings X
Use of cookies
This site uses cookies. Our (own) cookies and those of our Partners (third party cookies) are used to offer you a unique experience with us. For this reason, together with our partners, we collect and process non-sensitive information (such as the identifier of your device or the pages you visit).
At any time you can delete, modify or verify the information you share in
Cookie preference
or in our
Cookie Policy
and
Privacy Policy
.
Necessary
Functional
Profiling
Analytics
Accept all
Decline all
Accept selected
Cookie preference