Toggle navigation
(+356) 2164 9500
(+356) 9998 6779
info@sensaramalta.com
Head Office - Sensara Malta
Triq Santa Marija, Safi
09.00 to 19.00 hrs
Monday to Saturday
Home
Properties
Sales
Rentals
Foreign
About us
Services
Contacts
Send your request
Previous
Next
210,000 €
CLICK HERE for DETAILED PHOTOS
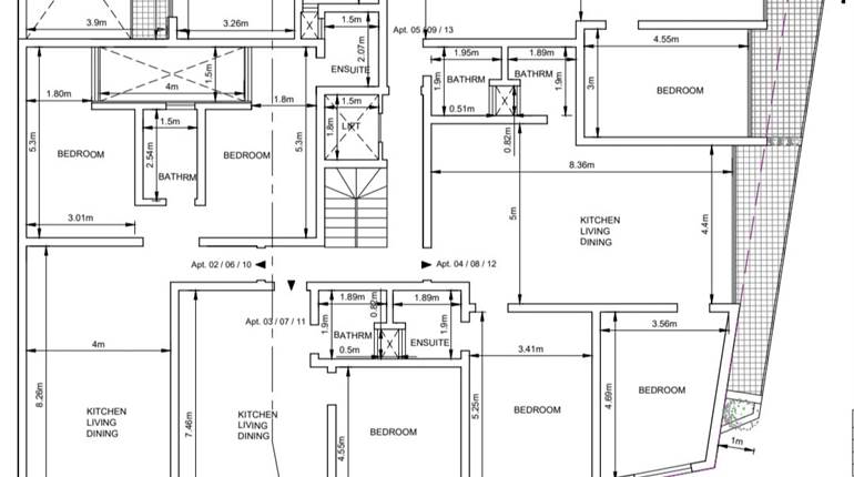
Paola - On plan 2 Bedroom Apt , Finished
2 bedroom apartment for sale • Paola
Presently on the plan, development is projected to commence in July 2025, forming part of a block of 6 units, two on each floor, and being offered finished excluding bathrooms and internal doors.
This apartment has a kitchen/living/dining overlooking a front balcony, a side guest bathroom, a study, and the main bedroom which enjoys a balcony.
Completion of common parts will be finished by July 2026.
These apartments are ideal either for rental investment or for first-time buyers.
Freehold.
Rooms and Features
Code
V021493
Locality
Paola
Property type
2 bedroom apartment
Price
210,000 €
Locals
1
Bedrooms
2
Bathrooms
1
Sqm
61
Floor
1
Energetic class
Not applicable
Property Conditions
Under Construction
Photos • Floorplans • Video
Photos
Options
Print Property sheet
Send property sheet by mail
Schedule a visit
RealEstate Brokers
Dimech Miriam
+356 7904 6848
+356 9998 6779
+356 9998 6775
miriamd@sensaramalta.com
Information request
Name *
Phone *
E-mail *
Request Details *
I authorize the processing of my personal data according Regolamento UE n. 679/2016 -
Privacy Policy
I authorize the processing of data for marketing purposes, promotional activities, commercial offers and market surveys.
Send
Share on
We also recommend
for Sale
Luqa - 2 Bed,2 Bath Finished 3rd Flr Apartment
302,000 €
for Sale
Nadur Gozo - 3 Bedroom Furnished Apartment
278,000 €
for Sale
Zabbar - First floor 2 bedroom Apartment fully finished
270,000 €
Keep default settings X
Use of cookies
This site uses cookies. Our (own) cookies and those of our Partners (third party cookies) are used to offer you a unique experience with us. For this reason, together with our partners, we collect and process non-sensitive information (such as the identifier of your device or the pages you visit).
At any time you can delete, modify or verify the information you share in
Cookie preference
or in our
Cookie Policy
and
Privacy Policy
.
Necessary
Functional
Profiling
Analytics
Accept all
Decline all
Accept selected
Cookie preference