Toggle navigation
(+356) 2164 9500
(+356) 9998 6779
info@sensaramalta.com
Head Office - Sensara Malta
Triq Santa Marija, Safi
09.00 to 19.00 hrs
Monday to Saturday
Home
Properties
Sales
Rentals
Foreign
About us
Services
Contacts
Send your request
Previous
Next
395,000 €
CLICK HERE for DETAILED PHOTOS
Naxxar - 3 Bedroom Finished Maisonette
Maisonette for sale • Naxxar
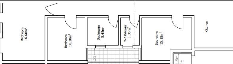
In an excellent tranquil location of Naxxar close to all amenities comes this finished Maisonette. This property consists of a spacious open plan kitchen/dining/living, three-bedrooms master with ensuite and internal yard, main bathroom and another yard for more outdoor space. This is still on plan and will be offered finished excluding bathrooms and doors. Optional garages are available at extra price.
Rooms and Features
Code
V021418
Locality
Naxxar
Property type
Maisonette
Price
395,000 €
Locals
1
Bedrooms
3
Bathrooms
2
Sqm
150
Terraces
1
Floor
Ground floor
Energetic class
Nondescript
Photos • Floorplans • Video
Photos
Options
Print Property sheet
Send property sheet by mail
Schedule a visit
RealEstate Brokers
Zahra Gaynor
+356 7933 5643
+356 9998 6775
+356 9998 6779
gaynor@sensaramalta.com
Information request
Name *
Phone *
E-mail *
Request Details *
I authorize the processing of my personal data according Regolamento UE n. 679/2016 -
Privacy Policy
I authorize the processing of data for marketing purposes, promotional activities, commercial offers and market surveys.
Send
Share on
We also recommend
for Sale
Santa Venera - 3 Bedroom Finished, Elevated Maisonette + Pool
400,000 €
for Sale
Mosta - Ground Floor 3 Bedroom Maisonette + Optional Garage
369,000 €
for Sale
Sliema - 4 Bedroom Elevated Maisonette 235 sqm
820,000 €
Keep default settings X
Use of cookies
This site uses cookies. Our (own) cookies and those of our Partners (third party cookies) are used to offer you a unique experience with us. For this reason, together with our partners, we collect and process non-sensitive information (such as the identifier of your device or the pages you visit).
At any time you can delete, modify or verify the information you share in
Cookie preference
or in our
Cookie Policy
and
Privacy Policy
.
Necessary
Functional
Profiling
Analytics
Accept all
Decline all
Accept selected
Cookie preference