Toggle navigation
(+356) 2164 9500
(+356) 9998 6779
info@sensaramalta.com
Head Office - Sensara Malta
Triq Santa Marija, Safi
09.00 to 19.00 hrs
Monday to Saturday
Home
Properties
Sales
Rentals
Foreign
About us
Services
Contacts
Send your request
Previous
Next
179,000 €
CLICK HERE for DETAILED PHOTOS
Hamrun - 1 Bedroom + Study On Plan Shell Form
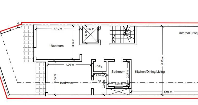
2 bedroom apartment for sale • Hamrun
A New Project of Apartments situated in Hamrun close to all amenities, set on the first floor level, to be sold in Shell Form with common parts Finished and served with a lift. Completion apprx by end of February 2027 in shell form, and common parts by end of December 2027.
Set on the Second Floor, consisting of Kitchen/Living/Dining with a good sized balcony, main bathroom, Double bedroom and a Large Study. Freehold
Rooms and Features
Code
V021379
Locality
Hamrun
Property type
2 bedroom apartment
Price
179,000 €
Locals
1
Bedrooms
2
Bathrooms
1
Sqm
58
Balconies
1
Floor
2
Energetic class
Nondescript
Property Conditions
Next Realization
Photos • Floorplans • Video
Photos
Options
Print Property sheet
Send property sheet by mail
Schedule a visit
RealEstate Brokers
Jenkins Rita
+356 7712 7772
+356 9998 6779
+356 9998 6775
rita@sensaramalta.com
Information request
Name *
Phone *
E-mail *
Request Details *
I authorize the processing of my personal data according Regolamento UE n. 679/2016 -
Privacy Policy
I authorize the processing of data for marketing purposes, promotional activities, commercial offers and market surveys.
Send
Share on
We also recommend
for Sale
Rabat - 2 Bed Finished Luxurious Duplex Apartment + Private Pool + Terrace + Views
1,950,000 €
for Sale
Qormi - 2 Bedroom Apartment On Plan
190,000 €
for Sale
Zejtun - 2 Bedroom Apartment / Finished
255,000 €
Keep default settings X
Use of cookies
This site uses cookies. Our (own) cookies and those of our Partners (third party cookies) are used to offer you a unique experience with us. For this reason, together with our partners, we collect and process non-sensitive information (such as the identifier of your device or the pages you visit).
At any time you can delete, modify or verify the information you share in
Cookie preference
or in our
Cookie Policy
and
Privacy Policy
.
Necessary
Functional
Profiling
Analytics
Accept all
Decline all
Accept selected
Cookie preference