Toggle navigation
(+356) 2164 9500
(+356) 9998 6779
info@sensaramalta.com
Head Office - Sensara Malta
Triq Santa Marija, Safi
09.00 to 19.00 hrs
Monday to Saturday
Home
Properties
Sales
Rentals
Foreign
About us
Services
Contacts
Send your request
Previous
Next
450,000 €
CLICK HERE for DETAILED PHOTOS
Birkirkara - 2 Bedroom Finished Penthouse + Airspace
Penthouse for sale • Birkirkara
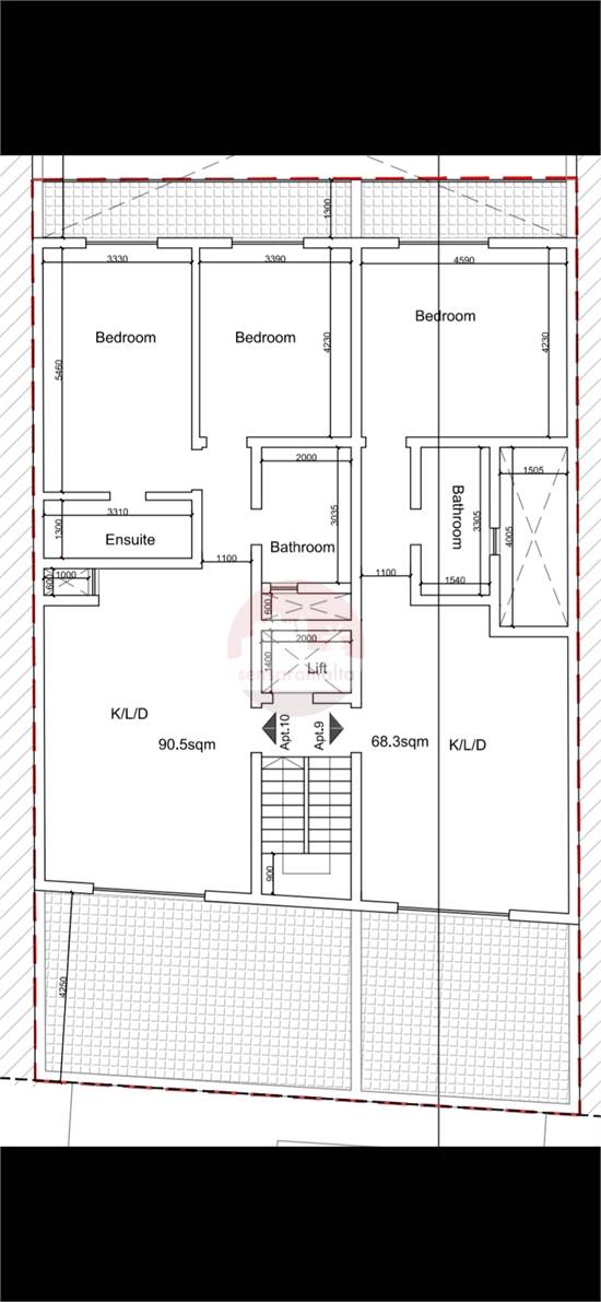
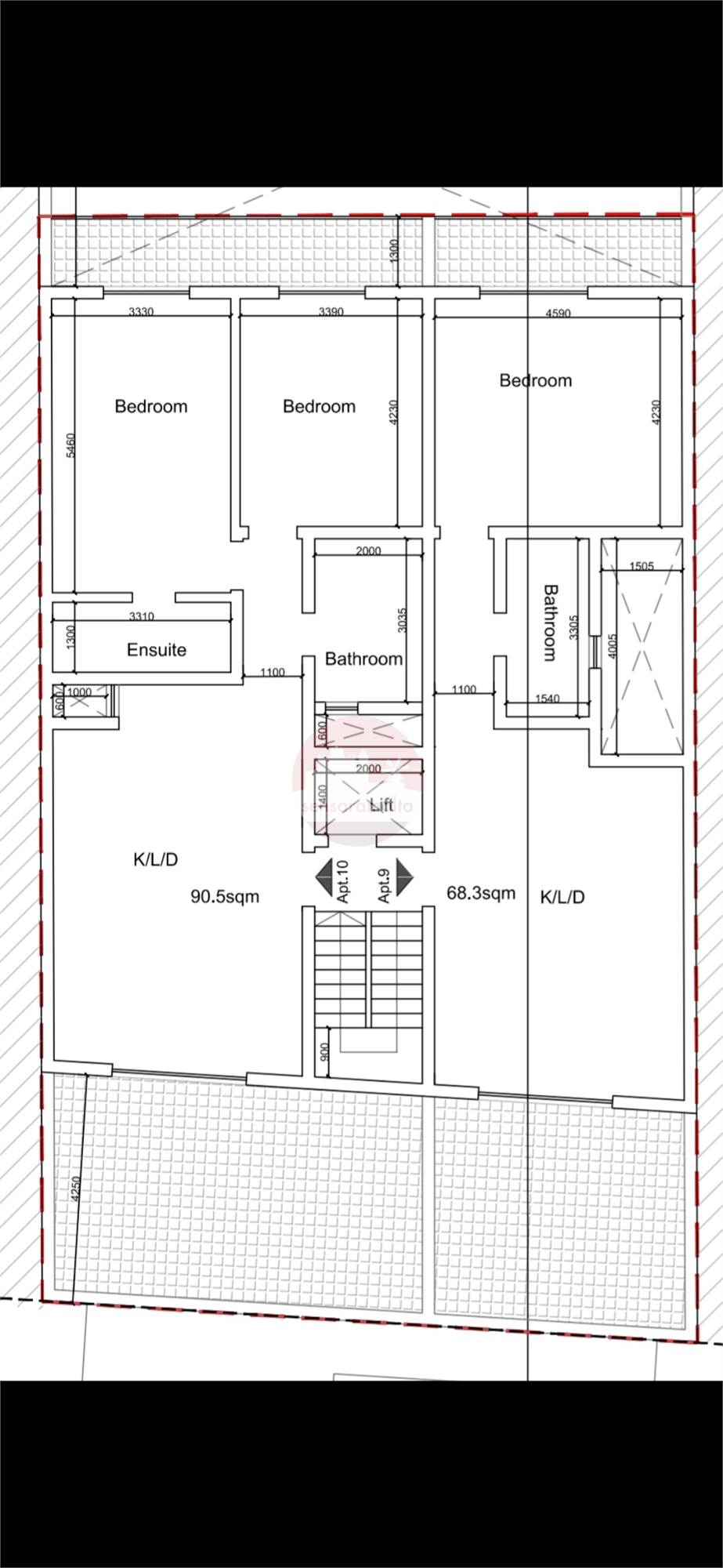
Presently under construction, laid on the 4th-floor level, being offered finished including bathrooms, internal doors, Ac's Units and Photovoltaic system. and measures circa 96.6sqm.
The layout comprises an open plan kitchen/living/dining overlooking its front terrace and a corridor that leads to its bathroom, and two bedrooms of which the main with an ensuite and a small back terrace.
Freehold
Optional garages available at basement level.
Rooms and Features
Code
V021376
Locality
Birkirkara
Property type
Penthouse
Price
450,000 €
Locals
1
Bedrooms
2
Bathrooms
2
Sqm
96.6
Terraces
2
Floor
4
Energetic class
Not applicable
Property Conditions
New
Furniture
Not Furnished
Kitchen
Open Kitchen
Doors
New
Accessories:
Air Conditioning, Double Glazing, Photovoltaic
Photos • Floorplans • Video
Photos
Options
Print Property sheet
Send property sheet by mail
Schedule a visit
RealEstate Brokers
Grima Keith
+356 7902 0587
+356 9998 6775
+356 9998 6779
keith@sensaramalta.com
Information request
Name *
Phone *
E-mail *
Request Details *
I authorize the processing of my personal data according Regolamento UE n. 679/2016 -
Privacy Policy
I authorize the processing of data for marketing purposes, promotional activities, commercial offers and market surveys.
Send
Share on
We also recommend
for Sale
Siggiewi, Currently Under Construction ** 195sqm Penthouse 3Bedroom + Roof + Mdina Views
717,000 €
for Sale
Balzan - 165sqm 3 Bedroom Penthouse, Built
553,000 €
for Sale
Rabat - 3 Bedroom Finished Luxurious Penthouse + Pool + Terrace + Views
2,800,000 €
Keep default settings X
Use of cookies
This site uses cookies. Our (own) cookies and those of our Partners (third party cookies) are used to offer you a unique experience with us. For this reason, together with our partners, we collect and process non-sensitive information (such as the identifier of your device or the pages you visit).
At any time you can delete, modify or verify the information you share in
Cookie preference
or in our
Cookie Policy
and
Privacy Policy
.
Necessary
Functional
Profiling
Analytics
Accept all
Decline all
Accept selected
Cookie preference