Toggle navigation
(+356) 2164 9500
(+356) 9998 6779
info@sensaramalta.com
Head Office - Sensara Malta
Triq Santa Marija, Safi
09.00 to 19.00 hrs
Monday to Saturday
Home
Properties
Sales
Rentals
Foreign
About us
Services
Contacts
Send your request
Previous
Next
410,000 €
CLICK HERE for DETAILED PHOTOS
Iklin - Already Built 2 Bedroom Fully Finished Apartment at 2nd Floor + Terrace + Optional Garage
3+ bedroom apartment for sale • Iklin
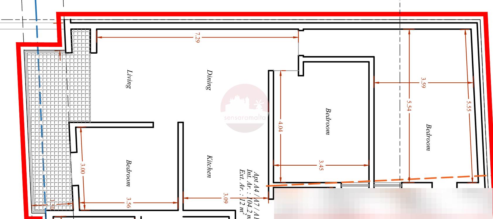
In the heart of Iklin comes this 2nd floor 2 bedroom apartment which is already built and it is being offered fully finished including bathrooms and internal doors.
The layout consist in a longish open plan overlooking a front terrace, 2 double bedrooms of which main is served with an ensuit and a master bathroom.
Optional interconnected garages are also available starting from Eur 44,000
This development estimate to be fully competed by 2026.
Rooms and Features
Code
V021207
Locality
Iklin
Property type
3+ bedroom apartment
Price
410,000 €
Locals
1
Bedrooms
3
Bathrooms
2
Sqm
116.2
Terraces
1
sqm Terrace
12
Floor
2
Energetic class
Not applicable
Property Conditions
New
Photos • Floorplans • Video
Photos
Options
Print Property sheet
Send property sheet by mail
Schedule a visit
RealEstate Brokers
Schembri Maria Pawla
+356 7732 8183
+356 9998 6779
+356 9998 6775
pawla@sensaramalta.com
Information request
Name *
Phone *
E-mail *
Request Details *
I authorize the processing of my personal data according Regolamento UE n. 679/2016 -
Privacy Policy
I authorize the processing of data for marketing purposes, promotional activities, commercial offers and market surveys.
Send
Share on
We also recommend
for Sale
Ghasri Gozo - House of Character + Pool
666,000 €
for Sale
Attard - 3 bedroom Furnished Apartment
390,000 €
for Sale
Mosta - 3 Bedroom Ground Floor Apt + Yard + Pool
435,000 €
Keep default settings X
Use of cookies
This site uses cookies. Our (own) cookies and those of our Partners (third party cookies) are used to offer you a unique experience with us. For this reason, together with our partners, we collect and process non-sensitive information (such as the identifier of your device or the pages you visit).
At any time you can delete, modify or verify the information you share in
Cookie preference
or in our
Cookie Policy
and
Privacy Policy
.
Necessary
Functional
Profiling
Analytics
Accept all
Decline all
Accept selected
Cookie preference