Toggle navigation
(+356) 2164 9500
(+356) 9998 6779
info@sensaramalta.com
Head Office - Sensara Malta
Triq Santa Marija, Safi
09.00 to 19.00 hrs
Monday to Saturday
Home
Properties
Sales
Rentals
Foreign
About us
Services
Contacts
Send your request
Previous
Next
225,000 €
CLICK HERE for DETAILED PHOTOS
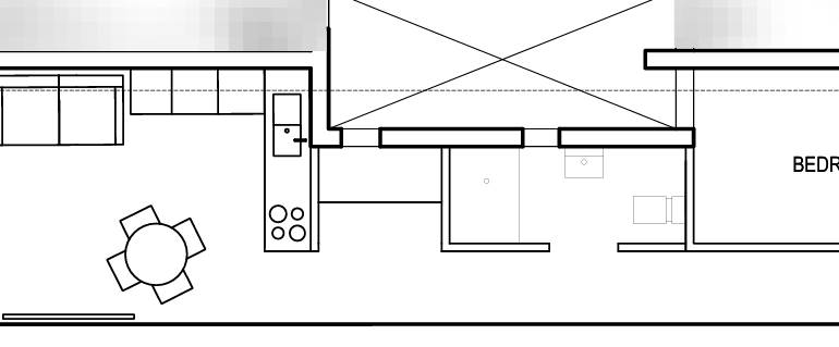
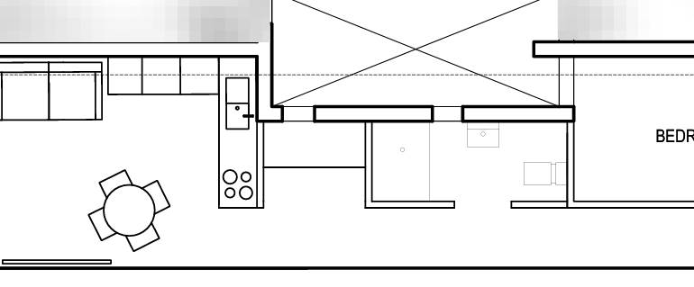
Iklin - One Bedroom Apartment - Finished On Plan
1 bedroom apartment for sale • Iklin
New development in Iklin, construction will soon start, to be Finished by end of Year 2026. To Be sold Finished excluding bathroom and internal doors.
One Bedroom Apartment features Kitchen/Living/Dining overlooking a longish balcony, Double Bedroom and Bathroom. This apartment has a foot print of circa 60sqm.
Freehold
Rooms and Features
Code
V021065
Locality
Iklin
Property type
1 bedroom apartment
Price
225,000 €
Locals
1
Bedrooms
1
Sqm
60
Balconies
1
Energetic class
Nondescript
Photos • Floorplans • Video
Photos
Options
Print Property sheet
Send property sheet by mail
Schedule a visit
RealEstate Brokers
Jenkins Rita
+356 7712 7772
+356 9998 6779
+356 9998 6775
rita@sensaramalta.com
Information request
Name *
Phone *
E-mail *
Request Details *
I authorize the processing of my personal data according Regolamento UE n. 679/2016 -
Privacy Policy
I authorize the processing of data for marketing purposes, promotional activities, commercial offers and market surveys.
Send
Share on
We also recommend
for Sale
Marsalforn Gozo - 1 Bedroom Penthouse + Airspace
160,000 €
for Sale
Swieqi - 3rd Floor Fully Finished 1 Bedroom Apartment + Balconies + Optional Garage
292,000 €
for Sale
Msida - Fourth Floor Finished Studio Apartment On Plan
285,000 €
Keep default settings X
Use of cookies
This site uses cookies. Our (own) cookies and those of our Partners (third party cookies) are used to offer you a unique experience with us. For this reason, together with our partners, we collect and process non-sensitive information (such as the identifier of your device or the pages you visit).
At any time you can delete, modify or verify the information you share in
Cookie preference
or in our
Cookie Policy
and
Privacy Policy
.
Necessary
Functional
Profiling
Analytics
Accept all
Decline all
Accept selected
Cookie preference