Toggle navigation
(+356) 2164 9500
(+356) 9998 6779
info@sensaramalta.com
Head Office - Sensara Malta
Triq Santa Marija, Safi
09.00 to 19.00 hrs
Monday to Saturday
Home
Properties
Sales
Rentals
Foreign
About us
Services
Contacts
Send your request
Previous
Next
396,000 €
CLICK HERE for DETAILED PHOTOS
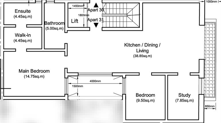
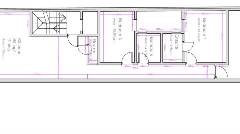
Fgura - 3 Bedroom Apartment With Pool On Plan
3+ bedroom apartment for sale • Fgura
This on-plan 3-bedroom Apartment in Fgura facing ODZ, offers a spacious and modern living layout, including two double bedrooms and one spare bedroom, with the master bedroom featuring an ensuite bathroom. The property also includes a main bathroom. This maisonette is designed with a backyard that features a private pool, perfect for relaxation and entertaining. The maisonette is being sold in shell form, with the common parts already completed. It is set to be fully ready by 2027, providing buyers with the opportunity to personalize the interior to their taste. This is an ideal property for those seeking a stylish and contemporary home in Fgura. Optional garages are available at an extra price.
Rooms and Features
Code
V020983
Locality
Fgura
Property type
3+ bedroom apartment
Price
396,000 €
Locals
1
Bedrooms
3
Bathrooms
2
Sqm
196
Terraces
1
Floor
Ground floor
Energetic class
Nondescript
Photos • Floorplans • Video
Photos
Options
Print Property sheet
Send property sheet by mail
Schedule a visit
RealEstate Brokers
Aguis Lorna
+356 9961 6121
+356 9998 6779
+356 2164 9500
lorna@sensaramalta.com
Information request
Name *
Phone *
E-mail *
Request Details *
I authorize the processing of my personal data according Regolamento UE n. 679/2016 -
Privacy Policy
I authorize the processing of data for marketing purposes, promotional activities, commercial offers and market surveys.
Send
Share on
We also recommend
for Sale
Dingli - 3 Bedroom 2nd Floor Finished Apartment On Plan
430,000 €
for Sale
Qrendi - 3 Bedroom 3rd Floor Finished Apartment On Plan
507,000 €
for Sale
Safi - 1st Floor 3 Bedroom Apartment Shell Form + Unobstructed Views
327,500 €
Keep default settings X
Use of cookies
This site uses cookies. Our (own) cookies and those of our Partners (third party cookies) are used to offer you a unique experience with us. For this reason, together with our partners, we collect and process non-sensitive information (such as the identifier of your device or the pages you visit).
At any time you can delete, modify or verify the information you share in
Cookie preference
or in our
Cookie Policy
and
Privacy Policy
.
Necessary
Functional
Profiling
Analytics
Accept all
Decline all
Accept selected
Cookie preference