Toggle navigation
(+356) 2164 9500
(+356) 9998 6779
info@sensaramalta.com
Head Office - Sensara Malta
Triq Santa Marija, Safi
09.00 to 19.00 hrs
Monday to Saturday
Home
Properties
Sales
Rentals
Foreign
About us
Services
Contacts
Send your request
Previous
Next
379,000 €
CLICK HERE for DETAILED PHOTOS
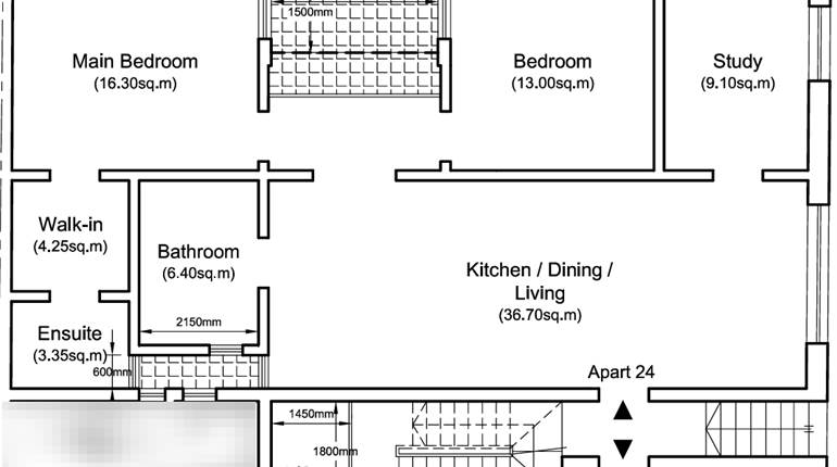
Mgarr - 157 sqm Finished 1st floor 3 Bedroom Apartment + 2 terraces + Optional garages
3+ bedroom apartment for sale • Mgarr
In a modern residential block of only 8 units , comes this 1st floor 3bedroom apartment which is being offered finished excluding bathrooms and internal doors. This block is considered unique when one consider the sqm of each apartment which allow a comfortable living and the good outdoor which each units owns.
The property consists of a large front open plan overlooking its front terrace, 3 double bedrooms of which main is served with ensiut and back terrace , and a master bathroom.
Optional interconnected garages are also available
Freehold,
Rooms and Features
Code
V020911
Locality
Mgarr
Property type
3+ bedroom apartment
Price
379,000 €
Locals
1
Bedrooms
3
Bathrooms
2
Sqm
157.3
Terraces
2
Floor
2
Energetic class
Nondescript
Property Conditions
New
Photos • Floorplans • Video
Photos
Options
Print Property sheet
Send property sheet by mail
Schedule a visit
RealEstate Brokers
Schembri Maria Pawla
+356 7732 8183
+356 9998 6779
+356 9998 6775
pawla@sensaramalta.com
Information request
Name *
Phone *
E-mail *
Request Details *
I authorize the processing of my personal data according Regolamento UE n. 679/2016 -
Privacy Policy
I authorize the processing of data for marketing purposes, promotional activities, commercial offers and market surveys.
Send
Share on
We also recommend
for Sale
Mellieha - 1st Floor 3 Bedroom Finished Apartment + Optional Garage
330,000 €
for Sale
Rabat - 3 Bedroom Finished Luxurious Apartment + Pool + Terrace + Views
0 €
for Sale
Mellieha Ghadira -3 Bedroom Apartment + Highly Finished
388,000 €
Keep default settings X
Use of cookies
This site uses cookies. Our (own) cookies and those of our Partners (third party cookies) are used to offer you a unique experience with us. For this reason, together with our partners, we collect and process non-sensitive information (such as the identifier of your device or the pages you visit).
At any time you can delete, modify or verify the information you share in
Cookie preference
or in our
Cookie Policy
and
Privacy Policy
.
Necessary
Functional
Profiling
Analytics
Accept all
Decline all
Accept selected
Cookie preference