Toggle navigation
(+356) 2164 9500
(+356) 9998 6779
info@sensaramalta.com
Head Office - Sensara Malta
Triq Santa Marija, Safi
09.00 to 19.00 hrs
Monday to Saturday
Home
Properties
Sales
Rentals
Foreign
About us
Services
Contacts
Send your request
Previous
Next
343,000 €
CLICK HERE for DETAILED PHOTOS
Sannat - Apartment With Pool
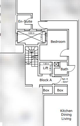
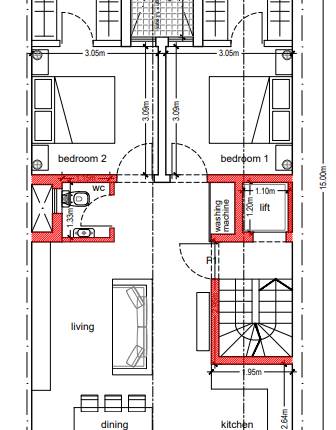
2 bedroom apartment for sale • Sannat Gozo
Discover your dream home in Sannat Gozo with this stylish 2-bedroom, 2 bathroom apartment, currently available on plan. Perfectly designed for modern living. This property boasts an open plan kitchen/dining/ living with a front terrace with pool ideal for entertaining. This apartment will be sold in shell form, estimate compilation date by 2026.
Rooms and Features
Code
V020692
Locality
Sannat Gozo
Property type
2 bedroom apartment
Price
343,000 €
Locals
1
Bedrooms
2
Bathrooms
2
Sqm
127
Terraces
1
Energetic class
Nondescript
Photos • Floorplans • Video
Photos
Options
Print Property sheet
Send property sheet by mail
Schedule a visit
RealEstate Brokers
Zahra Gaynor
+356 7933 5643
+356 9998 6775
+356 9998 6779
gaynor@sensaramalta.com
Information request
Name *
Phone *
E-mail *
Request Details *
I authorize the processing of my personal data according Regolamento UE n. 679/2016 -
Privacy Policy
I authorize the processing of data for marketing purposes, promotional activities, commercial offers and market surveys.
Send
Share on
We also recommend
for Sale
Zabbar- Third floor 2 bedroom Apartment Fully finished
270,000 €
for Sale
St Venera - 2 Bedroom Finished Apartment Ready Built
290,000 €
for Sale
Mosta Finished 2 bedroom 3rd Floor 95 sqm 2 Bedroom Apartment + Optional Garages
333,000 €
Keep default settings X
Use of cookies
This site uses cookies. Our (own) cookies and those of our Partners (third party cookies) are used to offer you a unique experience with us. For this reason, together with our partners, we collect and process non-sensitive information (such as the identifier of your device or the pages you visit).
At any time you can delete, modify or verify the information you share in
Cookie preference
or in our
Cookie Policy
and
Privacy Policy
.
Necessary
Functional
Profiling
Analytics
Accept all
Decline all
Accept selected
Cookie preference