Toggle navigation
(+356) 2164 9500
(+356) 9998 6779
info@sensaramalta.com
Head Office - Sensara Malta
Triq Santa Marija, Safi
09.00 to 19.00 hrs
Monday to Saturday
Home
Properties
Sales
Rentals
Foreign
About us
Services
Contacts
Send your request
Previous
Next
434,000 €
CLICK HERE for DETAILED PHOTOS
Mosta - 2 bedroom First Floor Apartment
2 bedroom apartment for sale • Mosta
Affordable, convenient and in an excellent location!
Take a look at this first floor apartment set in the heart of Mosta yet away from all the hustle and bustle of modern life while retaining its vicinity to all amenities!
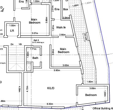
This apartment welcomes you with a spacious KLD overlooking a front balcony. The corridor leads you to a very useful pantry and an extra box room, main bathroom and to the two double bedrooms, one of which comes with an ensuite and walk-in wardrobe. Both bedrooms have access to a private back balcony.
This one of a kind property is guaranteed to meet your requirements, being offered finished excluding bathrooms and doors. However, bathrooms and internal doors can also be ready for you at an extra cost.
It is being sold freehold.
Rooms and Features
Code
V020595
Locality
Mosta
Property type
2 bedroom apartment
Price
434,000 €
Locals
1
Bedrooms
2
Bathrooms
2
Sqm
156
Garages
2
Balconies
2
Energetic class
Not applicable
Photos • Floorplans • Video
Photos
Options
Print Property sheet
Send property sheet by mail
Schedule a visit
RealEstate Brokers
Aguis Lorna
+356 9961 6121
+356 9998 6779
+356 2164 9500
lorna@sensaramalta.com
Information request
Name *
Phone *
E-mail *
Request Details *
I authorize the processing of my personal data according Regolamento UE n. 679/2016 -
Privacy Policy
I authorize the processing of data for marketing purposes, promotional activities, commercial offers and market surveys.
Send
Share on
We also recommend
for Sale
Swieqi- 1st floor , 2 bedroom + front & back balcony + Fully Finished + Opt Garage
395,000 €
for Sale
Zabbar - 1st Floor 3 Bedroom Apartment
272,000 €
for Sale
Rabat - 2 Bed Finished Luxurious Duplex Apartment + Private Pool + Terrace + Views
1,950,000 €
Keep default settings X
Use of cookies
This site uses cookies. Our (own) cookies and those of our Partners (third party cookies) are used to offer you a unique experience with us. For this reason, together with our partners, we collect and process non-sensitive information (such as the identifier of your device or the pages you visit).
At any time you can delete, modify or verify the information you share in
Cookie preference
or in our
Cookie Policy
and
Privacy Policy
.
Necessary
Functional
Profiling
Analytics
Accept all
Decline all
Accept selected
Cookie preference