Toggle navigation
(+356) 2164 9500
(+356) 9998 6779
info@sensaramalta.com
Head Office - Sensara Malta
Triq Santa Marija, Safi
09.00 to 19.00 hrs
Monday to Saturday
Home
Properties
Sales
Rentals
Foreign
About us
Services
Contacts
Send your request
Previous
Next
440,000 €
CLICK HERE for DETAILED PHOTOS
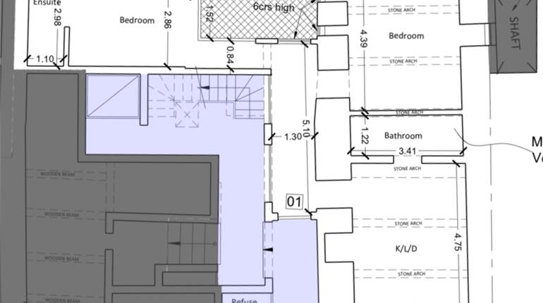
Mosta - 3 Bedroom Larger than Usual Ground Floor Maisonette
Maisonette for sale • Mosta
Looking for your next ideal home? Why not considering this ground floor maisonette set in the heart of Mosta yet away from all the hustle and bustle of modern life while retaining its vicinity to all amenities!
This larger than usual maisonette welcomes you with a front porch, leading to its spacious KLD. The corridor leads you to the main bathroom, a very useful box room and to the three double bedrooms, one of which includes an ensuite and access to the internal yard, the second bedroom also comes with an ensuite and the third bedroom has space for a walk-in wardrobe. At the back of the property, you can find a 27sqm outdoor area, accessed via all the three bedrooms.
This one of a kind property is guaranteed to meet your requirements, being offered finished excluding bathrooms and doors. However, bathrooms and internal doors can also be ready for you at an extra cost.
It is being sold freehold.
Rooms and Features
Code
V020547
Locality
Mosta
Property type
Maisonette
Price
440,000 €
Locals
1
Bedrooms
3
Bathrooms
3
Sqm
156
Garages
1
Energetic class
Not applicable
Photos • Floorplans • Video
Photos
Options
Print Property sheet
Send property sheet by mail
Schedule a visit
RealEstate Brokers
Aguis Lorna
+356 9961 6121
+356 9998 6779
+356 2164 9500
lorna@sensaramalta.com
Information request
Name *
Phone *
E-mail *
Request Details *
I authorize the processing of my personal data according Regolamento UE n. 679/2016 -
Privacy Policy
I authorize the processing of data for marketing purposes, promotional activities, commercial offers and market surveys.
Send
Share on
We also recommend
for Sale
Marsa - First Floor Maisonette + Airspace + Garage
287,000 €
for Sale
Birkirkara - Modern Ground Floor 3 Bedroom Fully Furnished Maisonette
486,500 €
for Sale
Fontana Gozo - 2 Bedroom Maisonette
164,000 €
Keep default settings X
Use of cookies
This site uses cookies. Our (own) cookies and those of our Partners (third party cookies) are used to offer you a unique experience with us. For this reason, together with our partners, we collect and process non-sensitive information (such as the identifier of your device or the pages you visit).
At any time you can delete, modify or verify the information you share in
Cookie preference
or in our
Cookie Policy
and
Privacy Policy
.
Necessary
Functional
Profiling
Analytics
Accept all
Decline all
Accept selected
Cookie preference