Toggle navigation
(+356) 2164 9500
(+356) 9998 6779
info@sensaramalta.com
Head Office - Sensara Malta
Triq Santa Marija, Safi
09.00 to 19.00 hrs
Monday to Saturday
Home
Properties
Sales
Rentals
Foreign
About us
Services
Contacts
Send your request
Previous
Next
265,000 €
CLICK HERE for DETAILED PHOTOS
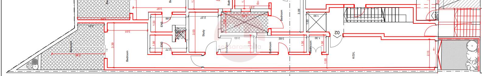
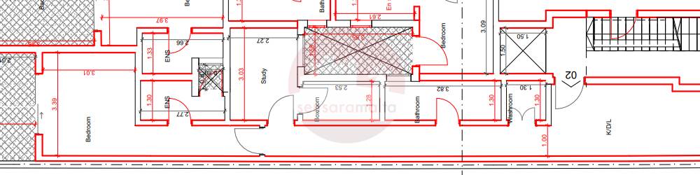
Birkirkara, 2 Bedroom , Yard, Terrace Apartment + Yard + Terrace
2 bedroom apartment for sale • Birkirkara
This property is an elevated ground floor apartment located very close to Mater Dei Hospital.
It is being offered in a finished state, excluding bathrooms and internal doors, providing the opportunity for personalized touches.
The apartment spans a total area of 100 sqm, with 23 sqm dedicated to outdoor space.
The layout features a long, open-plan living area that opens onto a terrace, offering a great space for relaxation or entertaining.
Additional features include a washroom, a main bathroom, a study with an adjacent box room for extra storage, and a main bedroom with an ensuite.
A sunny backyard adds to the outdoor appeal.
The property is freehold, offering complete ownership.
Rooms and Features
Code
V020380
Locality
Birkirkara
Property type
2 bedroom apartment
Price
265,000 €
Locals
1
Bedrooms
2
Bathrooms
2
Sqm
110.45
Terraces
2
sqm Terrace
23
Floor
Ground floor
Energetic class
Not applicable
Property Conditions
New
Accessories:
Double Glazing
Video
Photos • Floorplans • Video
Photos
Video
Options
Print Property sheet
Send property sheet by mail
Schedule a visit
RealEstate Brokers
Schembri Maria Pawla
+356 7732 8183
+356 9998 6779
+356 9998 6775
pawla@sensaramalta.com
Information request
Name *
Phone *
E-mail *
Request Details *
I authorize the processing of my personal data according Regolamento UE n. 679/2016 -
Privacy Policy
I authorize the processing of data for marketing purposes, promotional activities, commercial offers and market surveys.
Send
Share on
We also recommend
for Sale
Sliema - 2 Bedroom Furnished Apartment + 2 Cars Spaces
565,000 €
for Sale
Mellieha – Ghadira 2-Bedroom Apartment with Sea Views
398,000 €
for Sale
Marsaxlokk - 2nd Floor 2 Bedroom Finished Apartment
344,175 €
Keep default settings X
Use of cookies
This site uses cookies. Our (own) cookies and those of our Partners (third party cookies) are used to offer you a unique experience with us. For this reason, together with our partners, we collect and process non-sensitive information (such as the identifier of your device or the pages you visit).
At any time you can delete, modify or verify the information you share in
Cookie preference
or in our
Cookie Policy
and
Privacy Policy
.
Necessary
Functional
Profiling
Analytics
Accept all
Decline all
Accept selected
Cookie preference