Toggle navigation
(+356) 2164 9500
(+356) 9998 6779
info@sensaramalta.com
Head Office - Sensara Malta
Triq Santa Marija, Safi
09.00 to 19.00 hrs
Monday to Saturday
Home
Properties
Sales
Rentals
Foreign
About us
Services
Contacts
Send your request
Previous
Next
2,750,000 €
CLICK HERE for DETAILED PHOTOS
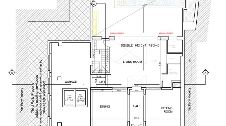
Mellieha - Luxury Villa with pool + country views
Villa for sale • Mellieha
This selection of luxurious Villas offers you the ultimate opportunity to own a slice of paradise. Nestled in the stunning countryside of Malta’s most beautiful region, these luxury villas offer unmatched comfort and serenity. Just moments from the bustling town centre of Mellieha, with all essential amenities close by; these tranquil retreats are perfectly positioned to provide both privacy and convenience. Thoughtfully designed to blend harmoniously with the surrounding landscape, the villas offer breath taking views that immerse you in the natural beauty of the countryside.
Estimated Completion: November 2025
Rooms and Features
Code
V020274
Locality
Mellieha
Property type
Villa
Price
2,750,000 €
Locals
1
Energetic class
Not applicable
Photos • Floorplans • Video
Photos
Options
Print Property sheet
Send property sheet by mail
Schedule a visit
RealEstate Brokers
Vella Ludric
+356 7909 1346
+356 9998 6779
+356 9998 6775
ludric@sensaramalta.com
Information request
Name *
Phone *
E-mail *
Request Details *
I authorize the processing of my personal data according Regolamento UE n. 679/2016 -
Privacy Policy
I authorize the processing of data for marketing purposes, promotional activities, commercial offers and market surveys.
Send
Share on
We also recommend
for Sale
Birzebbugia - Luxurious 5 Bedroom Villa Shell Form + Garage + Garden + Pool
2,950,000 €
for Sale
Gharb -Brand New Fully Detached Villa+Pool + Views
3,100,000 €
for Sale
Lija - Fully Detached 185 Sqm + Garden + Garage
1,750,000 €
Keep default settings X
Use of cookies
This site uses cookies. Our (own) cookies and those of our Partners (third party cookies) are used to offer you a unique experience with us. For this reason, together with our partners, we collect and process non-sensitive information (such as the identifier of your device or the pages you visit).
At any time you can delete, modify or verify the information you share in
Cookie preference
or in our
Cookie Policy
and
Privacy Policy
.
Necessary
Functional
Profiling
Analytics
Accept all
Decline all
Accept selected
Cookie preference