Toggle navigation
(+356) 2164 9500
(+356) 9998 6779
info@sensaramalta.com
Head Office - Sensara Malta
Triq Santa Marija, Safi
09.00 to 19.00 hrs
Monday to Saturday
Home
Properties
Sales
Rentals
Foreign
About us
Services
Contacts
Send your request
Previous
Next
277,000 €
CLICK HERE for DETAILED PHOTOS
Safi - 2 Bedroom Apartment + Views
2 bedroom apartment for sale • Safi
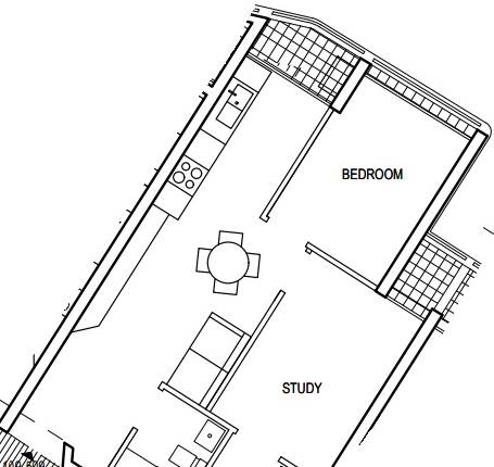
New on the market and close to all amenities, comes this second floor apartment with open views in Safi.
Upon entrance, one finds a corridor leading to the kitchen/living/dining with front balcony on one side, and on the other side of the corridor, one finds the main bedroom, main bathroom and a second bedroom with balcony. Both bedrooms come with ensuite.
Property is being sold on plan, finished excluding bathrooms and internal doors.
Freehold.
Rooms and Features
Code
V020075
Locality
Safi
Property type
2 bedroom apartment
Price
277,000 €
Locals
1
Bedrooms
2
Bathrooms
3
Sqm
95
Balconies
2
Energetic class
Not applicable
Photos • Floorplans • Video
Photos
Options
Print Property sheet
Send property sheet by mail
Schedule a visit
RealEstate Brokers
Aguis Lorna
+356 9961 6121
+356 9998 6779
+356 2164 9500
lorna@sensaramalta.com
Information request
Name *
Phone *
E-mail *
Request Details *
I authorize the processing of my personal data according Regolamento UE n. 679/2016 -
Privacy Policy
I authorize the processing of data for marketing purposes, promotional activities, commercial offers and market surveys.
Send
Share on
We also recommend
for Sale
Msida - 2 Bedroom First Floor Finished Apartment On Plan
302,000 €
for Sale
Swieqi- 1st floor , 2 bedroom + front & back balcony + Fully Finished + Opt Garage
395,000 €
for Sale
Qormi - 2 bedroom Aparment
256,000 €
Keep default settings X
Use of cookies
This site uses cookies. Our (own) cookies and those of our Partners (third party cookies) are used to offer you a unique experience with us. For this reason, together with our partners, we collect and process non-sensitive information (such as the identifier of your device or the pages you visit).
At any time you can delete, modify or verify the information you share in
Cookie preference
or in our
Cookie Policy
and
Privacy Policy
.
Necessary
Functional
Profiling
Analytics
Accept all
Decline all
Accept selected
Cookie preference