Toggle navigation
(+356) 2164 9500
(+356) 9998 6779
info@sensaramalta.com
Head Office - Sensara Malta
Triq Santa Marija, Safi
09.00 to 19.00 hrs
Monday to Saturday
Home
Properties
Sales
Rentals
Foreign
About us
Services
Contacts
Send your request
Previous
Next
389,000 €
CLICK HERE for DETAILED PHOTOS
M'scala - 3 Bdr Elevated Masionette / Back Terrace
Maisonette for sale • Marsascala
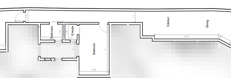
This elevated three-bedroom maisonette in Marsascala sounds fantastic! With a well-maintained interior, it offers a cozy sitting area, a kitchen/dining space, and a main bathroom. The layout includes three spacious double bedrooms, with the master featuring an en-suite, plus a convenient box room. The internal yard and back terrace add to the charm and usability of the space.
Being offered furnished and as freehold, it’s definitely ready for someone to move in and make it their own!
Rooms and Features
Code
V020020
Locality
Marsascala
Property type
Maisonette
Price
389,000 €
Locals
1
Bedrooms
3
Bathrooms
2
Sqm
160
Terraces
1
Energetic class
Not applicable
Photos • Floorplans • Video
Photos
Options
Print Property sheet
Send property sheet by mail
Schedule a visit
RealEstate Brokers
Schembri Josianne
+356 7782 4222
+356 9998 6779
+356 9998 6775
josianne@sensaramalta.com
Information request
Name *
Phone *
E-mail *
Request Details *
I authorize the processing of my personal data according Regolamento UE n. 679/2016 -
Privacy Policy
I authorize the processing of data for marketing purposes, promotional activities, commercial offers and market surveys.
Send
Share on
We also recommend
for Sale
Swieqi- Elevated Ground Floor Maisonette , 2 bedroom + Yard + Fully Finished + Opt Garage
395,000 €
for Sale
Zebbug – 2 Bedroom Furnished Maisonette + Optional Garage
390,000 €
for Sale
Kalkara - Ground Floor 3 Bedroom Maisonette + Optional Garage
358,000 €
Keep default settings X
Use of cookies
This site uses cookies. Our (own) cookies and those of our Partners (third party cookies) are used to offer you a unique experience with us. For this reason, together with our partners, we collect and process non-sensitive information (such as the identifier of your device or the pages you visit).
At any time you can delete, modify or verify the information you share in
Cookie preference
or in our
Cookie Policy
and
Privacy Policy
.
Necessary
Functional
Profiling
Analytics
Accept all
Decline all
Accept selected
Cookie preference