Toggle navigation
(+356) 2164 9500
(+356) 9998 6779
info@sensaramalta.com
Head Office - Sensara Malta
Triq Santa Marija, Safi
09.00 to 19.00 hrs
Monday to Saturday
Home
Properties
Sales
Rentals
Foreign
About us
Services
Contacts
Send your request
Previous
Next
195,000 €
CLICK HERE for DETAILED PHOTOS
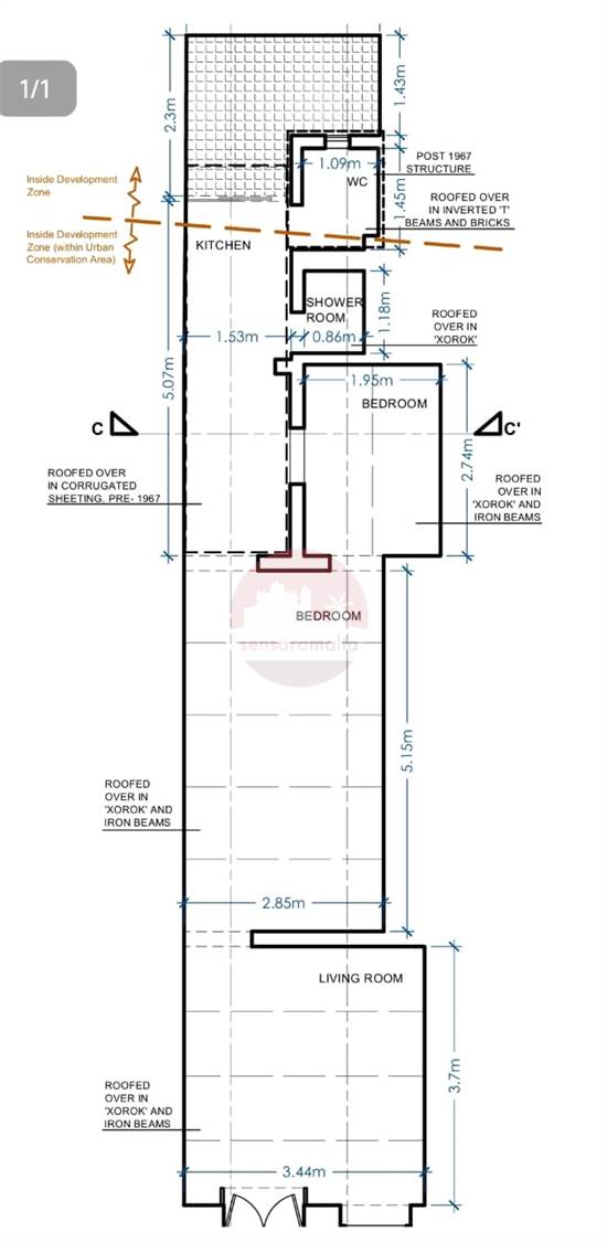
Paola - Ground Floor Maisonette
Maisonette for sale • Paola
In Paola comes a one bedroom Ground floor maisonette. Upon entering one finds a sitting, bedroom, kitchen/dining and a bathroom.
Freehold
Ideal as a rental investment.
Rooms and Features
Code
V020014
Locality
Paola
Property type
Maisonette
Price
195,000 €
Locals
1
Bedrooms
2
Bathrooms
1
Sqm
75
Terraces
1
Energetic class
Not applicable
Property Conditions
Habitable
Photos • Floorplans • Video
Photos
Options
Print Property sheet
Send property sheet by mail
Schedule a visit
RealEstate Brokers
Jenkins Rita
+356 7712 7772
+356 9998 6779
+356 9998 6775
rita@sensaramalta.com
Information request
Name *
Phone *
E-mail *
Request Details *
I authorize the processing of my personal data according Regolamento UE n. 679/2016 -
Privacy Policy
I authorize the processing of data for marketing purposes, promotional activities, commercial offers and market surveys.
Send
Share on
We also recommend
for Sale
Mosta - 3 DBL Finished Ground Floor Maisonette
594,000 €
for Sale
Qormi - 3 Bedoom Maisonette Ready Built
384,000 €
for Sale
Hamrun - 2 Bedroom Ground Floor Maisonette - New Development
322,500 €
Keep default settings X
Use of cookies
This site uses cookies. Our (own) cookies and those of our Partners (third party cookies) are used to offer you a unique experience with us. For this reason, together with our partners, we collect and process non-sensitive information (such as the identifier of your device or the pages you visit).
At any time you can delete, modify or verify the information you share in
Cookie preference
or in our
Cookie Policy
and
Privacy Policy
.
Necessary
Functional
Profiling
Analytics
Accept all
Decline all
Accept selected
Cookie preference