Toggle navigation
(+356) 2164 9500
(+356) 9998 6779
info@sensaramalta.com
Head Office - Sensara Malta
Triq Santa Marija, Safi
09.00 to 19.00 hrs
Monday to Saturday
Home
Properties
Sales
Rentals
Foreign
About us
Services
Contacts
Send your request
Previous
Next
226,000 €
CLICK HERE for DETAILED PHOTOS
Sliema Fully Finished office with Back Yard
Office for sale • Sliema
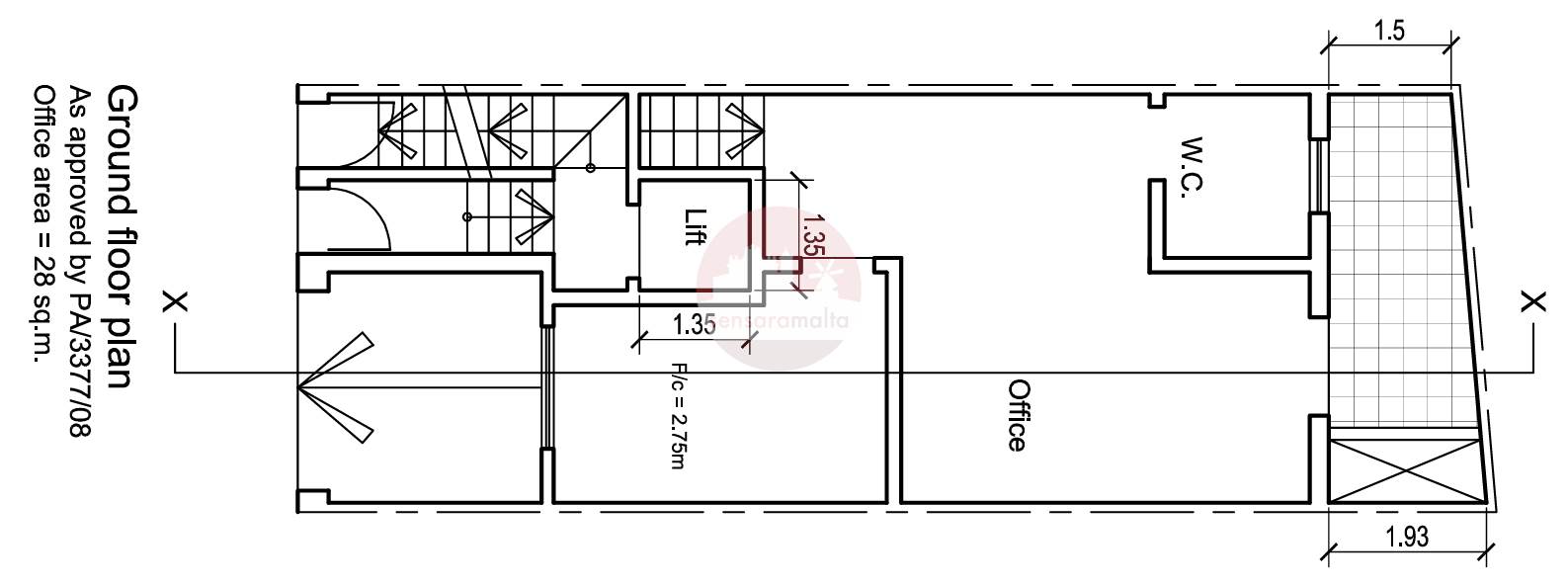
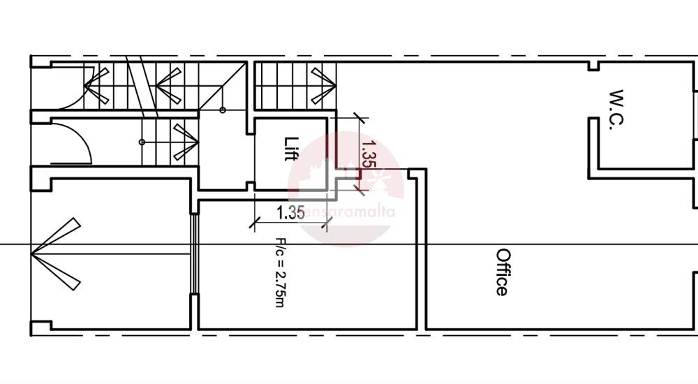
In Sliema comes this fully finished, new and recently built is currently running as an office and now for sale.
The property consists of a large office, side 2nd office , bathroom and back yard.
Freehold.
Rooms and Features
Code
V018268
Locality
Sliema
Property type
Office
Price
226,000 €
Locals
1
Sqm
28
Floor
Mezzanine
Energetic class
A
Photos • Floorplans • Video
Photos
Options
Print Property sheet
Send property sheet by mail
Schedule a visit
RealEstate Brokers
Schembri Maria Pawla
+356 7732 8183
+356 9998 6779
+356 9998 6775
pawla@sensaramalta.com
Information request
Name *
Phone *
E-mail *
Request Details *
I authorize the processing of my personal data according Regolamento UE n. 679/2016 -
Privacy Policy
I authorize the processing of data for marketing purposes, promotional activities, commercial offers and market surveys.
Send
Share on
We also recommend
for Sale
San Pawl il-Bahar - Class 4A Shop - Great Location
261,500 €
for Sale
Safi 2 Adjacent Class 4B Shops
287,000 €
for Sale
Sliema Tigne - 100sqm Commercial Premises
543,000 €
Keep default settings X
Use of cookies
This site uses cookies. Our (own) cookies and those of our Partners (third party cookies) are used to offer you a unique experience with us. For this reason, together with our partners, we collect and process non-sensitive information (such as the identifier of your device or the pages you visit).
At any time you can delete, modify or verify the information you share in
Cookie preference
or in our
Cookie Policy
and
Privacy Policy
.
Necessary
Functional
Profiling
Analytics
Accept all
Decline all
Accept selected
Cookie preference