Toggle navigation
(+356) 2164 9500
(+356) 9998 6779
info@sensaramalta.com
Head Office - Sensara Malta
Triq Santa Marija, Safi
09.00 to 19.00 hrs
Monday to Saturday
Home
Properties
Sales
Rentals
Foreign
About us
Services
Contacts
Send your request
Previous
Next
1,500,000 €
CLICK HERE for DETAILED PHOTOS
Swieqi Luxuries 3 BD Penthouse + Pool + Views
Penthouse for sale • Swieqi
Quite residential street, villa area, surrounded by 2 floors height
This brand new square penthouse is flooded with natural light in all rooms
.
Situated in a new block is being offered in a highly finished condition, including luxurious common parts. Walking distance to the seafront and in a perfect neighbourhood
450m2 Luxury Fully Detached Sky Villa, 360 Views, Roof top pool, complete privacy, 3 bedrooms.
This property is being offered ready to move in thus fully furnished, the airspace is being offered as an option.
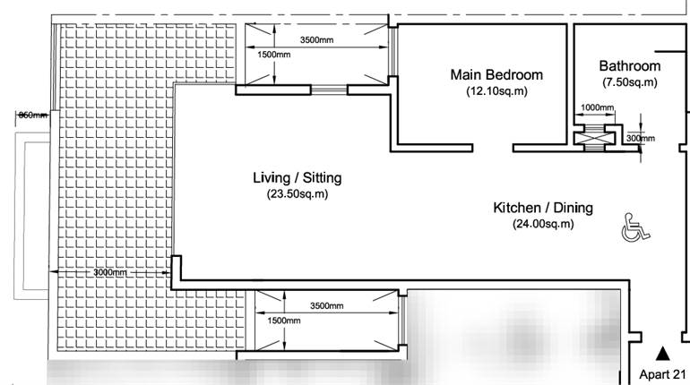
Rooms and Features
Code
V017595
Locality
Swieqi
Property type
Penthouse
Price
1,500,000 €
Locals
1
Bedrooms
4
Bathrooms
2
Sqm
185
Terraces
2
Floor
6
Energetic class
Not applicable
Property Conditions
New
Accessories:
Double Glazing
Photos • Floorplans • Video
Photos
Options
Print Property sheet
Send property sheet by mail
Schedule a visit
RealEstate Brokers
Schembri Maria Pawla
+356 7732 8183
+356 9998 6779
+356 9998 6775
pawla@sensaramalta.com
Information request
Name *
Phone *
E-mail *
Request Details *
I authorize the processing of my personal data according Regolamento UE n. 679/2016 -
Privacy Policy
I authorize the processing of data for marketing purposes, promotional activities, commercial offers and market surveys.
Send
Share on
We also recommend
for Sale
Marsascala - A Massive 249 sqm Corner 3 Bedroom Penthouse
594,000 €
for Sale
Zabbar - 4 Bedroom Penthouse Finished (On Plan)
620,000 €
for Sale
Santa Venera - 3 Bedroom Penthouse + Airspace
410,000 €
Keep default settings X
Use of cookies
This site uses cookies. Our (own) cookies and those of our Partners (third party cookies) are used to offer you a unique experience with us. For this reason, together with our partners, we collect and process non-sensitive information (such as the identifier of your device or the pages you visit).
At any time you can delete, modify or verify the information you share in
Cookie preference
or in our
Cookie Policy
and
Privacy Policy
.
Necessary
Functional
Profiling
Analytics
Accept all
Decline all
Accept selected
Cookie preference