Toggle navigation
(+356) 2164 9500
(+356) 9998 6779
info@sensaramalta.com
Head Office - Sensara Malta
Triq Santa Marija, Safi
09.00 to 19.00 hrs
Monday to Saturday
Home
Properties
Sales
Rentals
Foreign
About us
Services
Contacts
Send your request
Previous
Next
1,100,000 €
CLICK HERE for DETAILED PHOTOS
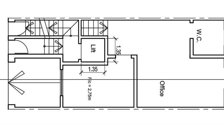
Zebbug - 350 sqm Second Floor Office
Office for sale • Zebbug
FURTHER REDUCTION OF EURO 40,000 (Forty Thousand Euros) TO SENSARA MALTA CLIENTS!!!!
On Mdina road in Zebbug comes this second floor (8 passenger lift) 350 sqm office space.
Freehold
Rooms and Features
Code
V016823
Locality
Zebbug
Property type
Office
Price
1,100,000 €
Locals
1
Sqm
350
Energetic class
Not applicable
Photos • Floorplans • Video
Photos
Options
Print Property sheet
Send property sheet by mail
Schedule a visit
Information request
Name *
Phone *
E-mail *
Request Details *
I authorize the processing of my personal data according Regolamento UE n. 679/2016 -
Privacy Policy
I authorize the processing of data for marketing purposes, promotional activities, commercial offers and market surveys.
Send
Share on
We also recommend
for Sale
Qormi - Commercial * Offices + Store + Garages + Basment in Handaq Industrial area
2,560,000 €
for Sale
Sliema Fully Finished office with Back Yard
230,000 €
for Sale
Mosta - 240 sqm 1st Floor Office
737,000 €
Keep default settings X
Use of cookies
This site uses cookies. Our (own) cookies and those of our Partners (third party cookies) are used to offer you a unique experience with us. For this reason, together with our partners, we collect and process non-sensitive information (such as the identifier of your device or the pages you visit).
At any time you can delete, modify or verify the information you share in
Cookie preference
or in our
Cookie Policy
and
Privacy Policy
.
Necessary
Functional
Profiling
Analytics
Accept all
Decline all
Accept selected
Cookie preference