Toggle navigation
(+356) 2164 9500
(+356) 9998 6779
info@sensaramalta.com
Head Office - Sensara Malta
Triq Santa Marija, Safi
09.00 to 19.00 hrs
Monday to Saturday
Home
Properties
Sales
Rentals
Foreign
About us
Services
Contacts
Send your request
Previous
Next
350,000 €
CLICK HERE for DETAILED PHOTOS
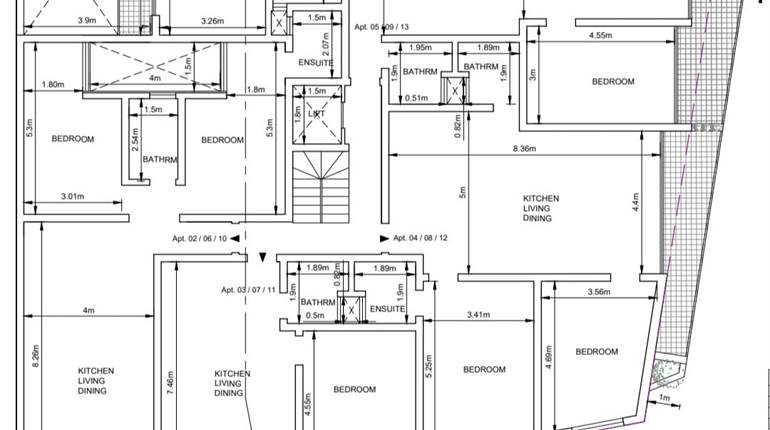
Gzira - Two Bedroom Apartment
2 bedroom apartment for sale • Gzira
New on the market this two bedroom APARTMENT, measuring approx.84 sqm internal and 8 sqm external.
Situated in a prime area of Gzira, corner with Sliema, and walking distance from the sea front.
Comprising of open plan kitchen, dinning, living, guest bathroom, two bedrooms main with en suite, and box room.
Property is being offered semi finished excluding bathrooms and doors.
Served with lift. Freehold
Further reductions for Sensara Malta Clients.
Viewing is highly recommended.
Rooms and Features
Code
V010612
Locality
Gzira
Property type
2 bedroom apartment
Price
350,000 €
Locals
1
Bathrooms
2
Sqm
92
Terraces
1
Energetic class
Nondescript
Photos • Floorplans • Video
Photos
Options
Print Property sheet
Send property sheet by mail
Schedule a visit
RealEstate Brokers
Dimech Miriam
+356 7904 6848
+356 9998 6779
+356 9998 6775
miriamd@sensaramalta.com
Information request
Name *
Phone *
E-mail *
Request Details *
I authorize the processing of my personal data according Regolamento UE n. 679/2016 -
Privacy Policy
I authorize the processing of data for marketing purposes, promotional activities, commercial offers and market surveys.
Send
Share on
We also recommend
for Sale
Pieta Under Construction 3rd floor 2 Bedroom Fully finished apartment
305,000 €
for Sale
Msida - 2 Bedroom 5th Floor Finished Apartment On Plan
307,000 €
for Sale
Paola - 2 Bedroom Shell Form Apartment On Plan
190,000 €
Keep default settings X
Use of cookies
This site uses cookies. Our (own) cookies and those of our Partners (third party cookies) are used to offer you a unique experience with us. For this reason, together with our partners, we collect and process non-sensitive information (such as the identifier of your device or the pages you visit).
At any time you can delete, modify or verify the information you share in
Cookie preference
or in our
Cookie Policy
and
Privacy Policy
.
Necessary
Functional
Profiling
Analytics
Accept all
Decline all
Accept selected
Cookie preference