Toggle navigation
(+356) 2164 9500
(+356) 9998 6779
info@sensaramalta.com
Head Office - Sensara Malta
Triq Santa Marija, Safi
09.00 to 19.00 hrs
Monday to Saturday
Home
Properties
Sales
Rentals
Foreign
About us
Services
Contacts
Send your request
Previous
Next
696,500 €
CLICK HERE for DETAILED PHOTOS
Attard ,Fully Finished Penthouse + Roof Garden
Penthouse for sale • Attard
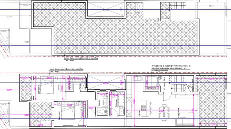
This smart block is located in a very sought-after area, already built.
It consists of an elevated Maisonette, 6 apartments, and 1 penthouse. All units are being offered on the plan, fully finished including the façade, and common parts including lift, bathrooms, internal doors, and air conditions. The Penthouse is being provided with its full airspace.
Optional interconnected 2-car garages are available at Eur 82,000. Completion date March 2025.
Rooms and Features
Code
V008592
Locality
Attard
Property type
Penthouse
Price
696,500 €
Locals
1
Bedrooms
3
Bathrooms
2
Sqm
136
Terraces
2
sqm Terrace
43
Floor
4
Energetic class
Nondescript
Property Conditions
Under Construction
Photos • Floorplans • Video
Photos
Documents
preston.pdf (210 kb)
Options
Print Property sheet
Send property sheet by mail
Schedule a visit
RealEstate Brokers
Schembri Maria Pawla
+356 7732 8183
+356 9998 6779
+356 9998 6775
pawla@sensaramalta.com
Information request
Name *
Phone *
E-mail *
Request Details *
I authorize the processing of my personal data according Regolamento UE n. 679/2016 -
Privacy Policy
I authorize the processing of data for marketing purposes, promotional activities, commercial offers and market surveys.
Send
Share on
We also recommend
for Sale
Santa Venera - 2 Bedroom Finished Penthouse + Airspace
290,000 €
for Sale
Qormi - 2 Bedroom Finished Penthouse + Optional Garage
358,500 €
for Sale
Luqa - 2 Double Bedroom Penthouse + Terrace
384,000 €
Keep default settings X
Use of cookies
This site uses cookies. Our (own) cookies and those of our Partners (third party cookies) are used to offer you a unique experience with us. For this reason, together with our partners, we collect and process non-sensitive information (such as the identifier of your device or the pages you visit).
At any time you can delete, modify or verify the information you share in
Cookie preference
or in our
Cookie Policy
and
Privacy Policy
.
Necessary
Functional
Profiling
Analytics
Accept all
Decline all
Accept selected
Cookie preference