Toggle navigation
(+356) 2164 9500
(+356) 9998 6779
info@sensaramalta.com
Head Office - Sensara Malta
Triq Santa Marija, Safi
09.00 to 19.00 hrs
Monday to Saturday
Home
Properties
Sales
Rentals
Foreign
About us
Services
Contacts
Send your request
Previous
Next
574,000 €
CLICK HERE for DETAILED PHOTOS
Siggiewi - 3 Bedroom Penthouse + Pool
Penthouse for sale • Siggiewi
Siggiewi-Already build- Penthouse with Pool, forming part of a block of just 4 units. Its Situated opposite a green area (Odz) its one of a kind luxury Penthouse.
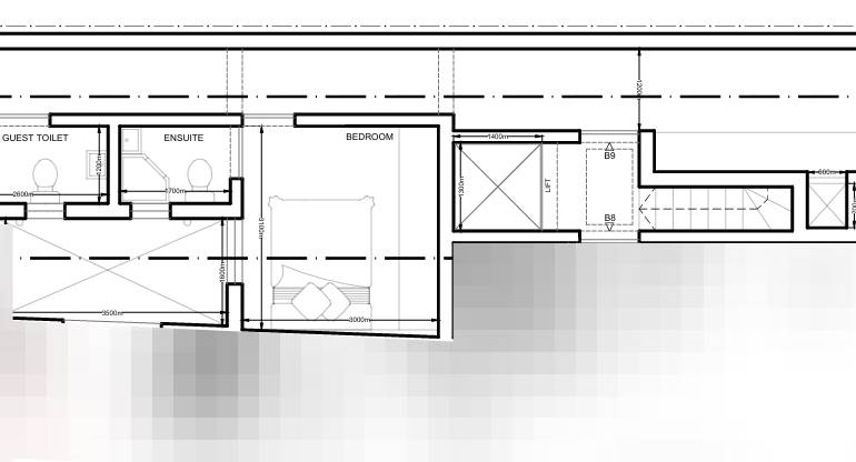
This Penthouse comprises of a spacious open plan/living/kitchen/dining, main bathroom, 2 double bedrooms (main with ensuite) 1 single bedroom.
Large Front Terrace with Pool and Back Balcony. Total of 147 sqm.
Property is being offered , finished excluding, bathrooms and internal doors, the price includes air space, common areas which is a big plus for further development in case of more floors permits.
Optional garages are also available.
Viewing is highly recommended.
Rooms and Features
Code
V006708
Locality
Siggiewi
Property type
Penthouse
Price
574,000 €
Locals
8
Sqm
146
Energetic class
Nondescript
Photos • Floorplans • Video
Photos
Options
Print Property sheet
Send property sheet by mail
Schedule a visit
RealEstate Brokers
Cortis Marika
+356 9925 6579
+356 9998 6779
+356 9998 6775
cortis@sensaramalta.com
Information request
Name *
Phone *
E-mail *
Request Details *
I authorize the processing of my personal data according Regolamento UE n. 679/2016 -
Privacy Policy
I authorize the processing of data for marketing purposes, promotional activities, commercial offers and market surveys.
Send
Share on
We also recommend
for Sale
San Pawl il-Bahar - 2 Bedroom + Study Finished Penthouse + Airspace
379,000 €
for Sale
Zebbiegh - 2 Bedroom Finished Penthouse + Terrace + Views
640,000 €
for Sale
Msida - One Bedroom Finished Penthouse
297,000 €
Keep default settings X
Use of cookies
This site uses cookies. Our (own) cookies and those of our Partners (third party cookies) are used to offer you a unique experience with us. For this reason, together with our partners, we collect and process non-sensitive information (such as the identifier of your device or the pages you visit).
At any time you can delete, modify or verify the information you share in
Cookie preference
or in our
Cookie Policy
and
Privacy Policy
.
Necessary
Functional
Profiling
Analytics
Accept all
Decline all
Accept selected
Cookie preference