Toggle navigation
(+356) 2164 9500
(+356) 9998 6779
info@sensaramalta.com
Head Office - Sensara Malta
Triq Santa Marija, Safi
09.00 to 19.00 hrs
Monday to Saturday
Home
Properties
Sales
Rentals
Foreign
About us
Services
Contacts
Send your request
Previous
Next
369,000 €
CLICK HERE for DETAILED PHOTOS
Zabbar - 2/3 Bedroom Maisonette + Backyard
Maisonette for sale • Zabbar
ZABBAR - READY YO MOVE INTO !!!
Situated in a very quiet residential area, yet close to all amenities, comes this new, fully furnished, first floor maisonette.
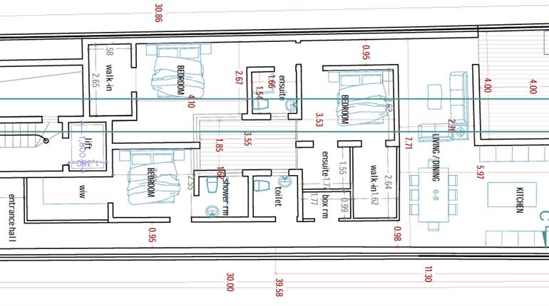
Property consists of a entrance leading to a marble staircase leading to an open plan, sitting room and study area overlooking a balcony on facade, a corridor leading you to a the bathroom, main double bedroom with en-suite and also enjoying a good size internal yard, single bedroom and a kitchen/dining room overlooking a large back yard with washroom.
Property is being offered fully furnished with Distinct Home furniture including kitchen appliances, double glazed apertures and with gypsum ceilings.
Optional is a street level garage, finished with tiled flooring and also with water and electricity installed.
Freehold & Negotiable
Rooms and Features
Code
V006123
Locality
Zabbar
Property type
Maisonette
Price
369,000 €
Locals
1
Bedrooms
2
Bathrooms
2
Sqm
125
Garages
1
Balconies
1
Terraces
1
Floor
1
Energetic class
Nondescript
Property Conditions
Perfect Conditions
Photos • Floorplans • Video
Photos
Options
Print Property sheet
Send property sheet by mail
Schedule a visit
RealEstate Brokers
Zammit Raisa
+356 7730 2130
+356 9998 6779
+356 9998 6775
raisa@sensaramalta.com
Information request
Name *
Phone *
E-mail *
Request Details *
I authorize the processing of my personal data according Regolamento UE n. 679/2016 -
Privacy Policy
I authorize the processing of data for marketing purposes, promotional activities, commercial offers and market surveys.
Send
Share on
We also recommend
for Sale
Mellieha - 2 Bedroom Elevated Ground Floor Maisonette + Backyard
308,000 €
for Sale
Zabbar - 4 Bedroom GF Maisonette Finished - On Plan
425,000 €
for Sale
Birkirkara - Circa 223sqm Ground Floor 3 Bedroom Maisonette + Yard + Pool + Optional Garage
630,000 €
Keep default settings X
Use of cookies
This site uses cookies. Our (own) cookies and those of our Partners (third party cookies) are used to offer you a unique experience with us. For this reason, together with our partners, we collect and process non-sensitive information (such as the identifier of your device or the pages you visit).
At any time you can delete, modify or verify the information you share in
Cookie preference
or in our
Cookie Policy
and
Privacy Policy
.
Necessary
Functional
Profiling
Analytics
Accept all
Decline all
Accept selected
Cookie preference